Maison design, contemporaine et moderne, pour une belle villa dans toute la région bordelaise
Maison design, contemporaine et moderne, pour une belle villa dans toute la région bordelaise
Maison design, contemporaine et moderne, pour une belle villa dans toute la région bordelaise
Plan Maison design, contemporaine et moderne, pour une belle villa dans toute la région bordelaise
Maison design, contemporaine et moderne, pour une belle villa dans toute la région bordelaise
Plan Maison design, contemporaine et moderne, pour une belle villa dans toute la région bordelaise
Maison dans les arbres design, contemporaine et moderne, pour une belle villa dans toute la région bordelaise
Maison dans les arbres design, contemporaine et moderne, pour une belle villa dans toute la région bordelaise
Extension Maison design, contemporaine et moderne, pour une belle villa dans toute la région bordelaise

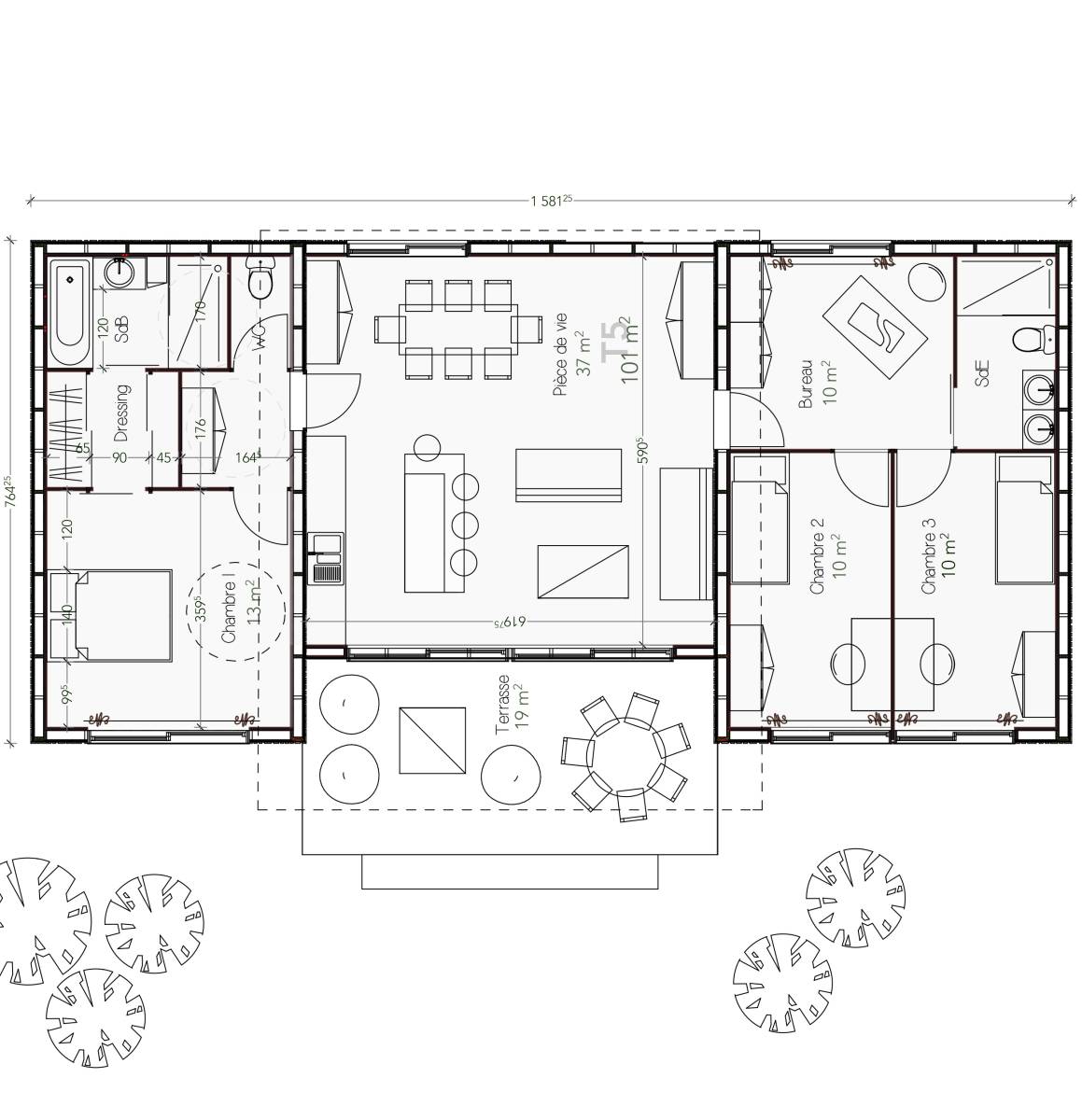
Un concept de maison bois évolutive 101 m² de plein pied en Gironde

Ce projet offre une solution architecturale unique et progressive, du studio à la maison d’environ 100 m² constituée d’une suite parentale de 2 chambres et d’un bureau. Elle est conçue spécialement pour les familles en croissance et les budgets limités. Ce concept innovant débute avec la construction d'un studio de 26 m², idéal pour une première installation indépendante ou un petit espace de vie. La deuxième phase voit l'ajout d'un appartement T2 de 35 m², fournissant des espaces supplémentaires pour un confort accru à mesure que les besoins de la famille évoluent.

La phase finale du projet consiste en l'élaboration d'un T4/T5 de 101 m², transformant l'ensemble en une maison familiale spacieuse, capable d'accommoder une famille grandissante avec tout le confort nécessaire. Cette approche modulaire permet aux résidents de développer leur habitat en fonction de leurs capacités financières et de leurs besoins en espace sans avoir à déménager.

Ce projet est non seulement pratique mais aussi écologique. Conçu avec des matériaux locaux, il minimise l'impact environnemental tout en s'intégrant harmonieusement avec le milieu naturel environnant. Les matériaux utilisés sont choisis pour leur durabilité, leur disponibilité locale et leur faible impact écologique, assurant une construction respectueuse de l'environnement.

En outre, cette conception flexible offre la possibilité d'incorporer des extensions créatives telles qu'une maison dans les arbres, ajoutant un élément unique qui peut servir de refuge tranquille ou d'espace ludique pour les enfants.

Ce projet adaptable et évolutif est parfait pour les jeunes familles cherchant à investir progressivement dans un habitat durable qui grandit avec eux, tout en restant fidèle à leurs valeurs écologiques et à leur budget.

Nous écrire
Les champs indiqués par un astérisque (*) sont obligatoires
À découvrir
Construction d'une Maison bois de 149 m2 et de plein pied sur la commune de Cazaux sur le bassin d'Arcachon

Construction d'une Maison bois de 149 m2 et de plein pied sur la commune de Cazaux sur le bassin d'Arcachon

Découvrez cette maison conçue par Bordeaux.archi, optimisant l’ensoleillement grâce à son emplacement. Avec un bardage en Red Cedar sur une maçonnerie en brique, elle combine esthétique, durabilité, confort et prix. Contactez-moi au 05 40 24 64 38 pour discuter de vos projets.
Création d'une villa familiale à étage à Bordeaux ou Mérignac

Création d'une villa familiale à étage à Bordeaux

Imaginez votre future maison, conçue sur mesure pour répondre à vos attentes et à celles de votre famille. Notre projet propose une maison avec un étage spécialement dédié aux enfants, comprenant une salle de jeux spacieuse et lumineuse qui surplombe l'entrée. Ce design unique non seulement maximi...
Création d’une maison contemporaine de plein pied à Abidjan

Création d’une maison contemporaine de plein pied à Abidjan

En 2017, nous avons entamé la conception d'une maison de plain-pied sur un terrain de 2000 m², destinée à un couple de futurs propriétaires ivoiriens. Le projet, situé en Côte d'Ivoire, nécessitait une approche particulièrement adaptée aux coutumes et aux pratiques locales, qui diffèrent sensiblem...
30 ans d'expériences
30 ans d'expériences
Étude et modélisation 3D
Étude et modélisation 3D
Accompagnement & garantie
Accompagnement & garantie
Projet clés en main
Projet clés en main